The Tallinn Geneva 12ft x 12ft is a modern take on a traditional log cabin. Featuring 45mm interlocking walls and an extended canopy, it is an extremely robust and stylish building.
Supplied with half-glazed double doors and an opening window to the front, it is a flexible building to suit any garden.
Features:
- 45mm Smooth Planed Interlocking Wall Boards
- 16mm Tongue & Groove Floor
- 16mm Tongue & Groove Roof
- Double Glazed Doors with Euro Lock
- 1 x Opening Front Window
- Toughened Glass
- Optional Double Glazing (4mm-6mm-4mm)
- Optional Roof insulation (25mm foil backed foam insulation)
- Optional Floor insulation (40mm foil backed foam insulation)
Dimensions:
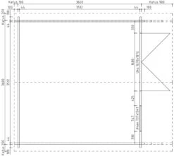
- Length 3600mm
- Width 3600mm
- Base Size 3544 x 3544mm
- External Ridge 2508mm
- External Eaves 1909mm
- External Area Excl Roof 3800 x 3800mm
- Externa Area Incl Roof 4600 x 4000mm
- Door Size 1460 x 1710mm
- Windows 1
Delivery & Installation:
Backed by decades of experience, we can construct your new garden building quickly and efficiently at a time and date to suit you. Unlike other companies, we have our very own highly acclaimed team members who have a wealth of experience while ensuring excellent customer service.
Installations are on the understanding that at pre-prepared firm, level base and adequate access is provided. It is entirely the customers responsibility to assess the size, quality, suitability and location of the base. No responsibility will be accepted for any misalignment the stability of any building installed on an unlevel or inadequate base.















Reviews
There are no reviews yet.